
Полная версия:
Виталий Булат Домашний архитектор. Подготовка к ремонту и строительству на компьютере
- + Увеличить шрифт
- - Уменьшить шрифт
• Вставить новый план

– запускает Мастер проектов, не закрывая активного плана. Пользователь получает возможность добавлять новые здания в проект с помощью Мастера проектов.
• Стандартные кнопки Открыть проект

и Сохранить проект

• Сохранить проект как интернет-страницу

– позволяет сохранить текущий проект ArCon в формате HTML для представления разработки в виде интернет-страницы на веб-сайтах. Таким функционалом обладают немногие графические редакторы. Подробнее об этом вы узнаете, когда научитесь создавать проекты в ArCon.
• Печать

– запускает печать содержимого текущего графического документа. Эту команду можно выполнить с помощью комбинации клавиш Ctrl+P. Будьте внимательны, поскольку эта команда мгновенно отправляет данные на принтер. Для настройки параметров печати служит команда системного меню Файл → Настройка печати.
• Сохранить изображение

– вызывает окно сохранения файла и позволяет сохранить текущий проект в виде графического изображения. В данной версии программы поддерживаются следующие форматы:
• растровый точечный файл BMP;
• JPEG-файл;
• метафайл Windows WMF;
• расширенный метафайл Windows EMF.
Выбор типа файла сохраняемого изображения осуществляется в раскрывающемся списке Тип файла окна Рисунок.
Эта команда доступна также в режиме дизайна. В этом случае она сохраняет графическое изображение модели здания в текущей ориентации и с текущими настройками представления.
• Новый вид

– появляется новое окно с представлением текущего проекта (рис. 1.4). Данная функция позволяет редактировать проект сразу в нескольких окнах, отображая в них части плана, этажи зданий и т. п. Можно создавать произвольное количество таких окон и как угодно размещать их в пределах главного окна программы. Создать новое окно представления можно также с помощью команды меню Окна → Новый вид.

Рис. 1.4. Дополнительное окно представления данных проекта
Данная команда также поддерживается для трехмерного представления проекта в режиме дизайна.
• Объемная планировка застройки

– активирует набор специальных команд для быстрого создания каркаса из внешних стен на плане, используя шаблон. Данная кнопка – переключатель. При ее нажатии вертикальная панель инструментов примет вид, показанный на рис. 1.5.

Рис. 1.5. Вертикальная панель инструментов при нажатой кнопке Объемная планировка застройки
Кнопки, появившиеся на вертикальной панели, позволяют создавать контуры из внешних стен без помощи команд создания отдельных стен. При выполнении команды Объемная планировка застройки все существующие на данный момент здания становятся неактивными (отображаются светло-серым цветом). После завершения редактирования плана в режиме объемного планирования (кнопка Объемная планировка застройки не нажата) все здания и постройки станут активными, а вертикальная панель инструментов примет обычный вид.
• Режим дизайна

– перевод текущего объекта в режим дизайна (трехмерного представления). Для перехода из режима конструирования в режим дизайна и обратно можно воспользоваться функциональной клавишей F12.
• Отменить

и Восстановить

предназначаются для отмены предыдущего действия или восстановления отмененного.
Примечание
В программе предусмотрена возможность отмены или повторения не только последнего действия (так называемой верхней операции в стеке), но и любого из ранее выполненных или отмененных. Для этого служит раскрывающийся список, который появляется после щелчка кнопкой мыши на треугольнике справа от кнопки Отменить или Восстановить.
• Масштабирование

– с помощью прямоугольной рамки, перемещаемой кнопкой мыши, можно указать участок плана, который будет подогнан к размерам окна представления документа.
• Показать все

устанавливает масштаб и размещение плана, при котором все его части отображаются в пределах габаритов окна представления.
• Следующая группа команд предназначена для размещения курсора и начала координатной сетки на плане. Данная группа состоит из четырех команд:
– Установить начало координат

– задание нового положения системы начала координат;
– Установить начало координатной сетки

– указывается точка, в которую устанавливается начальный узел сетки, остальные узлы отстраиваются во всех направлениях с одинаковым шагом;
– Установить начало координат и сетки

– устанавливает новое положение начала координат, совмещая с ним начало координатной сетки;
– Установить начало отсчета

– установка точки отсчета (локальной системы координат).
Практически весь пользовательский интерфейс программы ArCon построен на вариантных кнопках.
Вариантная кнопка – это элемент управления, дающий доступ к нескольким встроенным командам (кнопкам). Вариантная кнопка выглядит как обычная кнопка панели инструментов, и в ее нижнем правом углу расположен маленький черный треугольник. В качестве пиктограммы отображается пиктограмма той из входящих в нее кнопок, которая была нажата последней. Эта кнопка находится поверх других и считается активной. Щелчком на вариантной кнопке выполняется именно активная (последняя) команда. Все команды группы отображаются на небольшой панели, которая появляется при наведении указателя на активную кнопку группы.
Чтобы выполнить неактивную команду группы, необходимо навести указатель на пиктограмму активной команды, дождаться появления вспомогательной панели и нажать нужную кнопку (при наведении указателя возле каждой кнопки будет отображаться всплывающая подсказка) – будет выполнена требуемая команда, ее кнопка станет активной, а пиктограмма займет место пиктограммы вариантной кнопки (рис. 1.6).

Рис. 1.6. Группа команд для установки положения начала координат и начала координатной сетки
Совет
Обратите внимание на описанный выше способ организации функциональных (вариантных) кнопок, поскольку он является стандартом для интерфейса системы ArCon.
• Правильное архитектурное представление вкл./выкл.

– переключает между режимом отображения плана согласно общепринятым нормам при построении чертежей жилых зданий и режимом, используемым в программе ArCon (рис. 1.7). Изменения касаются отображения дверей, окон, лестниц и других объектов. В режиме правильного архитектурного представления (кнопка Правильное архитектурное представление вкл/выкл нажата) чертеж лучше всего сохранять как растровое изображение или распечатывать текущий план.

Рис. 1.7. Отображение плана: режим, используемый в системе ArCon (слева), и режим правильного архитектурного представления (справа)
По умолчанию режим правильного архитектурного (чертежного) представления отключен.
Внимание!
В режиме правильного архитектурного представления нельзя редактировать (в частности, с помощью перетаскивания точек кнопкой мыши) или выделять объекты ArCon, размещенные на плане.
• Точки вкл./выкл.

– управляет отображением сетки из точек на изображении плана. К узлам (точкам) данной сетки можно привязываться при построении стен или фиксации различных объектов на плане.
• Вспомогательные линии вкл./выкл.

– с помощью этой кнопки-переключателя на плане отображаются или скрываются линии объектов вспомогательной геометрии. Вспомогательные линии служат для создания эскиза плана или отдельных его частей с целью последующей привязки к ним при построении стен и создании других материальных объектов. Команды для построения вспомогательной геометрии на чертеже собраны в специальной группе на вертикальной панели инструментов.
• Слои вкл./выкл.

– управление отображением слоев на плане.
• Ландшафт показать/скрыть

– включить или отключить отображение элементов рельефа на плане или в окне трехмерного представления. Следует отметить, что, даже если в проекте указаны отметки высот рельефа и заданы текстуры (трава, грунт) для окружающей коттедж площадки, включение данной функции в графическом режиме практически не влияет на план. Напротив, в режиме дизайна различия между отображением трехмерной сцены весьма заметны (рис. 1.8).

Рис. 1.8. Трехмерное представление проекта с включенным (слева) и отключенным (справа) отображением ландшафта
Совет
Отключение ландшафта позволит сделать видимыми подвальные помещения или этажи построенного здания. При включенном отображении ландшафта их не видно.
• Штриховку стен вкл./выкл.

– предоставляет возможность показать или скрыть штриховку стен на плане в режиме конструирования.
• Показать внутреннюю обстановку

– по умолчанию всегда нажата. Ее отключение убирает с плана все объекты интерьера и экстерьера, оставляя только здание (стены, окна, лестницы и т. п.). Действие данной команды распространяется на режим дизайна, позволяя исключать из расчетов сцены трехмерные модели элементов интерьера и экстерьера.
• Поверхность крыш вкл./выкл.

– управляет отображением контуров крыши на плане здания. Если кнопка нажата, то контуры скатов и коньков крыши обрисовываются на плане пунктиром, в противном случае созданная крыша не отображается (рис. 1.9). Отключение отображения поверхности крыши улучшает представление чертежа здания, облегчая редактирование или добавление в план объектов.

Рис. 1.9. Здание с включенным (слева) и отключенным (справа) отображением крыши
Данная функция, как и предыдущая, распространяется на режим дизайна.
• Деревянная конструкция вкл./выкл.

– показывает или скрывает деревянные конструкции в здании, если такие используются в проекте.
• Надписи вкл./выкл.

– отвечает за отображение текстовых подписей на чертеже здания.
• Размеры вкл./выкл.

– отображение размеров. Размеры могут создаваться автоматически (например, при построении стены или при фиксации объекта в плане) или выборочно проставляться вручную с помощью специальных команд. В режиме дизайна эта кнопка неактивна, а размеры трехмерных элементов не отображаются.
• Предотвращение конфликтов

– во включенном состоянии кнопка обеспечивает контроль взаимных соударений объектов или соударений между объектом и стеной при добавлении новых объектов и перемещении или редактировании существующих.
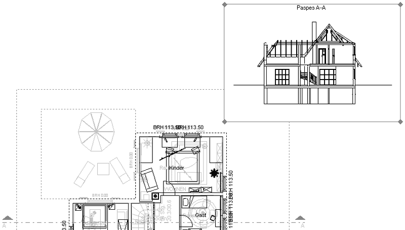
• Разрезы показать/скрыть

– предназначена для демонстрации сечений здания. Перед включением отображения разрезов их необходимо создать с помощью команды Определить разрез. Когда кнопка Разрезы показать/скрыть нажата, указанное сечение (их может быть несколько) отображается на плане в небольшой прямоугольной области, ограниченной тонкой красной линией с красными маркерами по углам (рис. 1.10). С помощью кнопки мыши эту область можно перетаскивать и размещать в любом месте текущего графического листа. Если кнопка Разрезы показать/скрыть не нажата, прямоугольная область с изображением сечения исчезнет, что не означает, что пропало само сечение.

Рис. 1.10. Разрез и его отображение на плане
Размеры данной прямоугольной области также можно изменять. Для этого подведите указатель к одному из маркеров в углах габаритного прямоугольника разреза и, нажав кнопку мыши, перетащите его.
Следующий элемент управления горизонтальной панели инструментов – это раскрывающийся список этажей активного здания на плане. Выбранный в списке элемент отвечает активному этажу в здании.
Примечание
Элементы активного этажа (планировка, интерьер, надписи) отображаются черным цветом (выделены), а элементы неактивных этажей– серым.
В крайней правой части горизонтальной панели инструментов находятся две кнопки – 3D-окно просмотра

и Помощь

Первая команда запускает немодальное окно, в котором отображается трехмерная модель здания на текущем этапе выполнения. Это окно перемещается в пределах главного окна программы и не мешает работе с планом, оставаясь поверх других окон. Изображение в этом окне можно вращать, приближать или отдалять, но нельзя масштабировать. Данное окно служит только для лучшего визуального представления изменений в плане при его разработке или редактировании. Вторая кнопка предназначена для вызова справочной системы программы ArCon. Вы можете воспользоваться ей, если знаете немецкий язык.
При переходе в режим дизайна набор элементов управления горизонтальной панели инструментов не изменяется, однако отдельные кнопки становятся недоступными (Вспомогательные линии вкл./выкл., Штриховку стен вкл./выкл., Надписи вкл./выкл., Размеры вкл./выкл., Разрезы показать/скрыть и пр.). В режиме дизайна появляется еще одна горизонтальная панель – панель управления представлением трехмерного изображения (рис. 1.11). Подробно о содержащихся на ней элементах управления будет рассказано далее при описании работы в режиме дизайна.

Рис. 1.11. Панель управления представлением трехмерного изображения
Большинство команд, управляющих отображением плана и его элементов, дублируются командами меню Показ. В этом меню есть и другие команды, которые будут рассмотрены позже.
Перейдем к изучению команд, представленных на вертикальной панели инструментов главного окна программы ArCon.
Вертикальная панель инструментов
В отличие от горизонтальной панели, состав вертикальной существенно отличается для режимов проектирования и дизайна. Рассмотрим команды, которые доступны в режиме конструирования. Это именно рассмотрение, а не изучение команд. Узнать подробнее о том, как работать с наиболее часто используемыми функциями ArCon, вы сможете из последующих глав данной книги.
Особенностью вертикальной панели инструментов является ее широкий набор команд, большинство из которых представлено в виде групп кнопок (вариантных кнопок).
• Самая верхняя – группа для выделения объектов чертежа.
– Выбрать элемент

– активизирует режим выделения любого элемента на чертеже или окне трехмерного представления (стены, окна, элемента интерьера и пр.).
Примечание
При выделении объекта на чертеже система может выдавать сообщение, что вы пытаетесь выделить элемент, который указан как не предназначенный для выделения. Перечень объектов, которые можно выбирать на плане (фильтр выбора), настраивается на вкладке Выделяемые элементы окна Улавливание и выбор в конструктивном режиме (рис. 1.12). Это окно можно вызвать, выполнив команду меню Опции → Программа → Улавливание и выбор → В режиме конструирования или воспользовавшись комбинацией клавиш Ctrl+Пробел. По умолчанию на данной вкладке установлены не все флажки. Рекомендуется нажать кнопку Все, чтобы разрешить выбор и выделение любых объектов плана.

Рис. 1.12. Окно настройки фильтра выделения
– Выделить область

– позволяет выделить произвольную многоугольную область. Все объекты, которые частично или полностью попали в нее, будут выделены. Для задания многоугольника необходимо последовательно указать его вершины, щелкая кнопкой мыши в требуемых точках плана. Чтобы завершить указание точек (то есть прекратить выполнение команды), следует нажать клавишу Esc.
• Следующая группа – Установка стен – считается наиболее используемой и состоит из следующих кнопок:
– Наружная стена (толщина 30 см)

– Наружная стена (толщина 24 см)

– Несущая стена (толщина 30 см)

– Несущая стена (толщина 24 см)

– Не несущая стена (толщина 13,5 см)

– Не несущая стена (толщина 11,5 см)

– Легкая перегородка (толщина 5 см)

– Виртуальная стена

Назначение каждой из кнопок понятно из ее названия, кроме последней. Виртуальная стена служит для условного разделения помещений на отдельные участки (комнаты).
Рассмотрим одну интересную особенность интерфейса программы ArCon. После выполнения некоторых команд (к примеру, любой из приведенных выше для построения стен на чертеже) рядом с вертикальной панелью инструментов отображается дополнительная панель с собственным набором кнопок (рис. 1.13). Эти кнопки открывают доступ к некоторым специфическим возможностям выполненной команды (в данном примере это команда для построения наружных стен (см. рис. 1.13)), реализуя возможные варианты построения объекта. Это означает, что вызванная функция не является инструментом построения или создания объекта, а только открывает доступ к вложенным процедурам построения. Одна из дополнительных кнопок всегда нажата (для стен по умолчанию это команда для непрерывного ввода стен). Из этого следует, что, когда вызывается родительская команда, вы автоматически входите в один из режимов построения, предлагаемый системой по умолчанию. Если вы выбираете другой вариант построения из предложенных на дополнительной вертикальной панели, предыдущая команда автоматически отменяется.

Рис. 1.13. Дополнительная панель с инструментальными кнопками
Для каждой из команд построения наружных или внутренних стен можно использовать следующие варианты построения.
– Непрерывный ввод стен
Конец ознакомительного фрагмента.
Текст предоставлен ООО «ЛитРес».
Прочитайте эту книгу целиком, купив полную легальную версию на ЛитРес.
Безопасно оплатить книгу можно банковской картой Visa, MasterCard, Maestro, со счета мобильного телефона, с платежного терминала, в салоне МТС или Связной, через PayPal, WebMoney, Яндекс.Деньги, QIWI Кошелек, бонусными картами или другим удобным Вам способом.