
Полная версия:
Андрей Шишанов Дизайн интерьеров в 3ds Max 2008
- + Увеличить шрифт
- - Уменьшить шрифт

Рис. 1.7. Настройка единиц измерений
Теперь настройки всех объектов в свитке Parameters (Параметры) на командной панели будут отображаться в выбранной вами системе единиц. Например, куб, показанный на рис. 1.8, имеет высоту, ширину и длину равную 100 см. Это можно увидеть в свитке настроек объекта на командной панели.

Рис. 1.8. Параметры объекта в метрической системе единиц
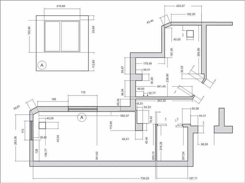
Довольно часто начинающие дизайнеры игнорируют важность точного соблюдения размеров и масштабов применительно к архитектурным сооружениям и предметам мебели. Иногда они моделируют на глаз, и в итоге нарушение пропорций приводит к искажению правильного зрительного восприятия объекта. Тем более это важно при расчете эргономики помещения. Хотя программа 3ds Max 2008 не предназначена для построения чертежей и не обладает достаточным количеством измерительных инструментов, тем не менее при небольшой сноровке можно относительно просто построить достаточно точную модель помещения. Вам необходимо как минимум иметь план и точные размеры самого помещения. Лучшим решением будет выполнить план и обмеры помещения самим при помощи рулетки и цифрового фотоаппарата. Рулеткой вы будете измерять расстояния и высоту, а фотоаппаратом снимать все сложные элементы, оконные и дверные проемы, особенности прокладки труб и выполнения отопительной системы. Чем тщательнее вы отнесетесь к этому подготовительному этапу, тем точнее получится трехмерная модель и уменьшится необходимость исправлений проекта в дальнейшем. Если в вашем проекте будут использоваться конкретная, согласованная с заказчиком мебель, бытовая техника или готовые декоративные элементы, то необходимо также получить их размеры и фотографии с разных ракурсов. Вариант изображения обмерочного плана показан на рис. 1.9.

Рис. 1.9. Обмерочный план помещения
Начинаем строить
Теперь можно приступать к построению помещения в программе 3ds Max 2008. Как вы уже знаете, в ней нет специальных инструментов для черчения, но некоторые ее возможности позволяют создать план с достаточной для наших целей точностью. В этом нам помогут свойства объектов Length (Длина) и Width (Ширина) объекта Rectangle (Прямоугольник), а также Radius (Радиус) объекта Circle (Окружность). Эти объекты являются сплайнами и расположены в категории Shapes (Формы) вкладки Create (Создание) командной панели. Для наглядности построения разместим чертеж в качестве фонового изображения окна проекции и будем строить поверх него. Для этого создайте в окне проекции Top (Сверху) примитив Box (Параллелепипед) с соотношением сторон, пропорциональным размерам чертежа. Если разрешение изображения чертежа, например, 1600 x 1280, то и параллелепипед необходимо создать с размерами 1600 x 1280 и толщиной 1 мм. В редакторе материалов (вызывается по умолчанию горячей клавишей М) необходимо активизировать плагин Metal Bump9, выбрав его в свитке DirectX Manager (Менеджер DirectX) из раскрывающегося списка Enable Plugin Material (Использовать подключаемый материал) (рис. 1.10).

Рис. 1.10. Активизация плагина Metal Bump9
Примечание
Чтобы можно было применить этот плагин, программа 3ds Max 2008 должна использовать графический драйвер Direct3D. Этот драйвер настоятельно рекомендуется использовать и по другой причине: разработчики 3ds Max 2008 внедрили в нее механизм аппаратного ускорения интерактивного просмотра сцены, и теперь, по официальному утверждению, вращение сцены в окне перспективы происходит в 60–70 раз быстрее, чем в более ранних версиях программы. Выбрать тип драйвера можно при первом запуске программы. Затем его можно изменить в настройках приложения следующим образом. Выполните команду Customize → Preferences (Настройка → Параметры), в открывшемся окне перейдите на вкладку Viewports (Окна проекций), нажмите кнопку Choose Driver (Выбор драйвера) и в появившемся окне щелкните на кнопке Revert from Direct3D (Возврат к Direct3D). Появится окно, в котором можно будет выбрать нужный драйвер, установив переключатель в соответствующее положение.
В окне редактора материалов перейдите к свитку DirectX Shader – Metal Bump9 (Шейдер DirectX – Metal Bump9). Параметру Texture 1 (Текстура 1) назначьте изображение чертежа (для этого следует щелкнуть на кнопке рядом с параметром Texture 1 (Текстура 1) и в появившемся окне выбрать нужный графический файл) и примените материал к созданному параллелепипеду, перетащив его с кнопки на объект в окне проекции (рис. 1.11).

Рис. 1.11. Использование плагина Metal Bump9
Теперь у вас в окне проекции есть изображение чертежа, по которому удобно обводить контур будущей постройки. Параметру Texture 2 (Текстура 2) можно добавить другой чертеж или вид, и ползунком уровня смешивания Mix Amount (Величина смешивания) плавно заменять одно изображение другим.
Естественно, чем выше разрешение и детальность сделанного вами чертежа, тем лучше вы будете видеть его на экране. При необходимости можно подогнать размер чертежа к выбранным вами единицам измерений. Взяв за отправную точку известное вам расстояние на чертеже, в тех же единицах масштаба можно построить сплайн Rectangle (Прямоугольник) с размерами по одной из сторон, соответствующими размерам выбранного узла на чертеже. Затем выделить параллелепипед с примененной к нему текстурой чертежа и инструментом Select and Non-uniform Scale (Выделить и неравномерно масштабировать) подогнать его до полного совпадения размеров чертежа и размеров сплайна Reсtangle (Прямоугольник). При этом Rectangle (Прямоугольник) является своеобразной линейкой, на размеры которой можно ориентироваться при подгонке масштаба чертежа. Небольшие неточности, неизбежные при таком методе, можно считать допустимыми, ведь вы делаете картинку для презентации, а не рабочие чертежи для строителей. Теперь осталось немного опустить параллелепипед по оси Y от нулевой отметки экранной системы координат. Это делается для того, чтобы параллелепипед с чертежом не перекрывал создаваемого поверх объекта.
Перейдем к моделированию стен. Вообще последовательность построения архитектурных объектов в 3ds Max 2008 очень напоминает настоящее строительство. Как и в реальности, стройка начинается с фундамента и стен, а уже затем создаются окна, двери, сантехника и мебель. Мы поступим таким же образом, за исключением фундамента. Наша виртуальная постройка не боится грунтовых вод и фундамент ей не нужен.
Существуют разные способы создания стен и несколько видов моделирования, подходящих для решения этой задачи. Не останавливаясь на сравнении достоинств и недостатков этих методов, я советую использовать наиболее привычный и удобный способ – сплайновое моделирование. Это настолько гибкий и универсальный метод, что с его помощью можно изготовить практически весь интерьер. Именно он позволяет наиболее просто и быстро создавать стены.
Начнем с того, что развернем окно проекции Top (Сверху) во весь экран (это можно сделать, нажав сочетание клавиш Alt+W при выделенном нужном окне проекции), чтобы видеть чертеж целиком[2]. Чтобы вам ничего не мешало, отключите отображение сетки на экране, выполнив команду Views → Grids → Show Home Grid (Вид → Сетки → Показать сетку). Еще раз проверьте соответствие масштаба чертежа вашим измерениям (рис. 1.12).

Рис. 1.12. Объект-лекало для проверки масштаба чертежа
Как вы видите, равносторонний прямоугольник с размерами 283 x 283 см совпадает со стеной, имеющей такую же длину.
Увеличьте изображение так, чтобы снова видеть весь чертеж целиком. Возьмите инструмент Line (Линия) из категории Shapes (Формы). В свитке Creation Method (Метод создания) установите переключатели Initial Type (Начальный тип) и Drag Type (Перемещаемый тип) в положения Corner (Угол) (рис. 1.13). Измените цвет сплайна на ярко-желтый, чтобы лучше видеть линии, нарисованные поверх чертежа, и начинайте обводить план. Не старайтесь сразу сделать все точно: увеличив масштаб просмотра, вы всегда сможете откорректировать ваш сплайн в режиме редактирования Vertex (Вершина).

Рис. 1.13. Настройки инструмента Line (Линия)
Не забывайте, что если удерживать клавишу Shift, то создаваемая линия сплайна будет строиться прямой по отношению к экранной View (Экран) системе координат, то есть прямой по оси X или Y. Разумеется, не стоит пытаться обвести весь чертеж одной непрерывной линией. Можно в конце построения объединить все сплайны в один командой Attach Mult. (Множественное присоединение). Для этого нужно выделить один сплайн, перейти на вкладку Modify (Изменение) командной панели, в свитке Geometry (Геометрия) нажать кнопку Attach Mult. (Множественное присоединение), в появившемся окне выбрать все сплайны и нажать кнопку Attach (Присоединить) (рис. 1.14). Обратите внимание, что временные стены и перегородки, которые могут перемещаться и трансформироваться в процессе дизайнерского замысла, необходимо делать отдельными от общего контура несущих стен.

Рис. 1.14. Использование команды Attach Mult. (Множественное присоединение)
Осталось выделить и склеить командой Weld (Склеить), которая находится в свитке Geometry (Геометрия) настроек сплайна на командной панели, все разъединенные вершины формы для получения цельного замкнутого сплайна. Для контролирования этого процесса вам пригодится модификатор Extrude (Выдавливание) (чтобы его применить, выполните при выделенном сплайне команду меню Modifiers → Mesh Editing → Extrude (Модификаторы → Редактирование поверхности → Выдавливание)). Если форма после выдавливания получилась незакрытая сверху и снизу, значит некоторые вершины остались необъединенными. Затем проверьте еще раз все размеры получившейся формы, применяя объекты-лекала и сверяясь с данными чертежа. Чтобы линии чертежа не мешали при проверке, полезно на время скрывать его. Для этого нужно выделить параллелепипед, над которым он находится, щелкнуть правой кнопкой мыши и в появившемся контекстном меню выбрать команду Hide Selection (Скрыть выделенное). При необходимости проверки размеров вы можете снова отобразить параллелепипед с чертежом, выполнив команду Unhide All (Отобразить все) контекстного меню (рис 1.15).

Рис. 1.15. Инструмент Hide Selection (Скрыть выделенное)
В результате вы получите контур вашей будущей постройки. Теперь осталось придать стенам высоту согласно размерам, указанным на чертеже. Для этого понадобится модификатор Extrude (Выдавливание), параметру Amount (Величина) которого следует задать нужное вам значение. В моем случае высота помещения равна 275 см. В результате получатся готовые стены помещения, правда, пока без окон и дверей (рис. 1.16).

Рис. 1.16. Результат применения модификатора Extrude (Выдавливание)
Примечание
В папке Examples\Сцены примеров\Глава 1 прилагаемого к книге DVD находится файл Стены по чертежам 2.max, который содержит сцену на данном этапе.
Однако, прежде чем выполнить оконные и дверные проемы, необходимо построить потолок и пол, который затем украсить плинтусом. Можно вернуться на уровень сплайнов, то есть до применения модификатора Extrude (Выдавливание) (для этого нужно в стеке модификаторов щелкнуть на строке Line (Линия)), сделать независимую копию (выполнив команду Edit → Clone (Правка → Клонировать) и выбрав в появившемся окне вариант Copy (Копия)) сплайна помещения и, удалив все сплайны, кроме внешнего контура, превратить его в модель пола. Однако так можно сделать не всегда – иногда в процессе построения стен приходится сворачивать стек модификаторов, в результате чего нельзя вернуться на уровень исходных сплайнов. Рассмотрим другой интересный метод, который пригодится вам при построении оконных рам, плинтусов, карнизов и множества других похожих архитектурных форм. Выделите созданный объект стены и в категории Shapes (Формы) вкладки Create (Создание) командной панели выберите инструмент Section (Сечение). В окне проекции Top (Сверху) создайте рамку сечения примерно посередине объекта. В принципе расположение рамки сечения Gizmo (Управляемый контейнер) не имеет значения, но когда все хорошо скомпоновано, удобнее контролировать процесс. Теперь перейдите в окно проекции Front (Спереди) и переместите рамку сечения таким образом, чтобы она располагалась чуть выше предполагаемой линии пола. Нажмите кнопку Create Shape (Создать форму) в свитке Section Parameters (Параметры сечения) настроек сечения на командной панели и в появившемся окне присвойте форме имя, например пол (рис. 1.17).

Рис. 1.17. Применение инструмента Section (Сечение)
Нажмите кнопку ОK. Удалите ненужную теперь рамку инструмента сечения. Выделите и скройте стены, чтобы в окне осталась только созданная форма. Разъедините и удалите внутренний сплайн, а оставшийся наружный замкните так, чтобы он при выдавливании превратился в сплошную форму пола. В нашем примере мы строим только часть помещения, поскольку я не хочу загромождать окно большой формой со множеством мелких деталей. Для вас главное понять принцип построения и очередность действий. Когда вы смоделируете всю квартиру, вы убедитесь, что для построения сплошной линии пола достаточно будет просто удалить внутренний сплайн, а оставшаяся форма совпадет с линией стены со 100 %-ной точностью. Теперь, когда линия-форма пола готова, примените к ней уже известный вам модификатор Extrude (Выдавливание) с небольшим значением параметра Amount (Величина) – примерно 2–3 см. Переместите созданную форму по оси Y таким образом, чтобы она немного перекрывала нижнюю грань стены (рис. 1.18).

Рис. 1.18. Создание поверхности пола
Пол готов. Скопировав полученный объект и переместив его по оси Y, вы получите сразу и потолок. Однако пока не будем этого делать – без потолка будет удобнее выполнять дальнейшие построения. Чтобы закончить с полом, украсим его плинтусом. Для этого вам понадобится линия-форма внутреннего периметра стены (та, которую мы удаляли, когда делали пол). Выполним операцию сечения стен еще раз. На этот раз рассечем стены в том месте, где будет проходить середина плинтуса. Присвойте полученному объекту имя, например линия плинтуса. Теперь удалите ненужный уже сплайн наружного периметра стены и расположите оставшуюся форму на 2 см выше линии пола. Настало время создать форму плинтуса. Перейдите в окно проекции Front (Спереди) и увеличьте изображение таким образом, чтобы хорошо видеть угол стены, линию пола и создаваемую форму. Выполните инструмент-лекало из сплайна Rectangle (Прямоугольник) c размерами 4 x 3 см и внутри его нарисуйте сплайновую форму плинтуса. Не старайтесь делать его очень сложным – в конце концов, в интерьере он не будет занимать основное место, если вообще будет виден, поэтому не стоит тратить на него много полигонов. Имеет смысл уменьшить интерполяцию линии до уровня 3 единиц, то есть задать параметру Steps (Количество шагов) в свитке Interpolation (Интерполяция) настроек сплайна значение 3. Чем меньше вершин участвует в построении формы, тем в конечном итоге сама форма будет легче по потребляемым ресурсам (рис. 1.19). Не забывайте про возможности рисования плавных кривых посредством редактирования вершин Bezier (Безье), что гораздо экономичнее по сравнению с простым методом сглаживания Smooth (Сглаженная) между несколькими вершинами. Ресурсы компьютера вам еще пригодятся в дальнейшем.

Рис. 1.19. Создание формы плинтуса
Теперь нужно объединить формы пола и плинтуса в одну. Это можно сделать несколькими способами, например с помощью стандартного инструмента Loft (Лофтинг) или подключаемого модуля AF Loft. Он имеет некоторые преимущества перед стандартным, заключающиеся в возможности интерактивного изменения размеров исходной формы, коррекции ее в пространстве и даже вращения вдоль пути. Мы же воспользуемся инструментом, появившемся еще в 3ds Max 8, – модификатором Sweep (Протяжение). Удалите ненужный больше инструментлекало и, выделив сплайн-путь, вдоль которого пройдет форма плинтуса, примените модификатор Sweep (Протяжение). Плинтус превратится в строительный металлический уголок, так как по умолчанию в модификаторе Sweep (Протяжение) уже назначены формы часто применяемых строительных профилей-уголков, труб, цилиндров и двутавровых балок. Установите переключатель в свитке Selection Type (Выбор типа) в положение Use Custom Section (Использовать произвольный тип), нажмите кнопку Pick (Указать) и щелкните на созданной вами форме плинтуса. Может получиться так, что форма плинтуса будет перевернута не так, как вам хотелось (рис. 1.20).

Рис. 1.20. Ошибка расположения формы плинтуса
В плагине AF Loft это легко можно отрегулировать простым вращением формы вдоль нужной оси координат, а вот инструмент Sweep (Протяжение) не имеет таких функций. Зато с его помощью можно зеркально отобразить формы в плоскостях XZ и XY. Для этого предназначены параметры Mirror on XZ Plane (Отражение в плоскости XZ) и Mirror on XY Plane (Отражение в плоскости XY). Отражение вдоль нужной оси поможет исправить положение перевернутой формы. Форма может перевернуться потому, что при построении сплайновых форм всегда учитывается положение начальных вершин и последовательность их создания: от первой до последней вершины по часовой стрелке или против. Выберите линию-путь плинтуса еще раз и на уровне редактирования Spline (Сплайн) нажмите кнопку Reverse (Поворот) в свитке Geometry (Геометрия) настроек сплайна на командной панели. В результате положение формы должно исправиться. Осталось удалить ненужную больше сплайновую форму плинтуса и откорректировать положение окончательной формы плинтуса так, чтобы он немного заходил в плоскости стены и пола (рис. 1.21).

Рис. 1.21. Правильное расположение формы плинтуса
Необходимо тщательно следить, чтобы на стыках форм отсутствовали щели, – это позволит в дальнейшем избежать проблем настройки освещения при визуализации. Обратите внимание, как плинтус аккуратно лег по всему периметру помещения, огибая все формы стен и проемов. Там, где вы хотите его вырезать, например в дверных проемах, достаточно просто вернуться на уровень сплайна-пути в стеке модификаторов и удалить ненужный сегмент. Соответственно, добавляя необходимые вершины, также легко можно корректировать форму плинтуса при возможном изменении линии стен или добавлении новых форм.
Теперь у нас есть все необходимое: стены, пол, потолок и даже плинтус. Осталось создать дверные и оконные проемы и вставить в них рамы. Для изготовления дверных, оконных проемов и различных внутренних ниш я рекомендую имеющийся в 3ds Max 2008 инструмент Pro Booleans. Многие специалисты довольно скептически относятся к этому инструменту – при операции вырезания он создает неконтролируемую сетку граней и не всегда корректно работает. Это верно, и применять этот инструмент для серьезного моделирования действительно не стоит. Однако легкость в обращении и возможность вернуться на шаг назад и заменить вырезаемую форму другой позволяют с успехом пользоваться им, например, при такой несложной операции, как вырезание проемов в заготовке стены. Во всяком случае у меня ни разу не возникало с ним никаких проблем.
Для начала постройте в окне проекции Right (Справа) сплайн Rectangle (Прямоугольник) с размерами окна (у меня – 115 x 135 см). Используя уже известные вам объекты-лекала, расположите его так, чтобы от линии пола до нижней грани прямоугольника было 85 см (это будет уровень подоконника), а от правой стены до прямоугольника согласно чертежу – 128 см. Примените к прямоугольнику модификатор Extrude (Выдавливание) со значением параметра Amount (Величина) 50 см, чтобы форма окна в окне проекции Top (Сверху) была чуть больше толщины стены. Расположите форму окна так, как показано на рис. 1.22.

Рис. 1.22. Расположение формы окна
Теперь у нас есть готовая для вырезания форма окна. Но не будем торопиться. Скопируйте (обязательно выбрав для копии тип Copy (Копия)) эту форму и расположите копии там, где нужно выполнить другие оконные проемы. При необходимости применяйте инструмент Select and Rotate (Выделить и повернуть) для корректного расположения объектов вдоль линии стен. Если стены перпендикулярны, то вводите значения поворота с клавиатуры в окне Rotate Transform Type-In (Ввод значений поворота), которое можно вызвать, щелкнув правой кнопкой мыши на значке Select and Rotate (Выделить и повернуть) на панели инструментов. В данном случае нужно указать 90° по оси Z (рис. 1.23).

Рис. 1.23. Окно для ввода угла поворота
Теперь у нас есть два окна, расположенных на одном уровне высоты по отношению к полу. Осталось изменить размеры второго окна согласно чертежу. Поскольку при копировании вы выбрали метод независимой копии, это не повлечет за собой автоматического изменения размера первого окна. Таким образом можно расположить окна по всему периметру стен. Применяя копию формы окна как объект-лекало, можно работать только в окне проекции Top (Сверху). Как видите, весь процесс занимает совсем немного времени, а это важно, когда сроки изготовления проекта сжаты и важна каждая сэкономленная минута.
Теперь можно делать вырезы. Выделите стену, перейдите на вкладку Create (Создание) командной панели, из раскрывающегося списка выберите строку Compound Object (Составной объект) и нажмите кнопку ProBoolean. Щелкните на кнопке Start Picking (Указать цель) и поочередно выберите объекты-окна. Помещение на данном этапе показано на рис. 1.24. Конечно, до полной готовности еще довольно далеко, но вы уже возвели стены, настелили пол и создали потолок, выполнили оконные и дверные проемы. Теперь можно застеклить окна и сделать рамы.

Рис. 1.24. Стены с прорезанными оконными проемами
Выполним это на примере одной стены. Я специально прорезал лишнее окно, которое не было обозначено на чертеже, чтобы показать, как можно с помощью одной операции получить возможность построить рамы сразу в нескольких окнах, расположенных в одной плоскости.
Перейдите в окно проекции Front (Спереди) и активизируйте уже известный вам инструмент Section (Сечение). В окне проекции Top (Сверху) расположите область сечения посередине стены, в которой вы выполняли оконные проемы. Создайте новую форму и назовите ее, например линия рамы (рис. 1.25).

Рис. 1.25. Сечение Section (Сечение) по линии оконных проемов
Спрячьте командой контекстного меню Hide Unselected (Скрыть невыделенное) форму стены и откорректируйте только что созданную форму-путь для рам так, чтобы остались только сплайны, расположенные по внутреннему периметру оконных проемов. В окне проекции Top (Сверху) нарисуйте несложную форму рамы (здесь не стоит прибегать к излишней детализации, поскольку, как и в случае с плинтусом, рама не является основным элементом интерьера). Примените уже известный вам инструмент Sweep (Протяжение) в той же последовательности, как вы использовали его при создании плинтуса. Чтобы рама не слишком углублялась в плоскость стены, возможно, придется подкорректировать ее положение по оси Х с помощью параметра X Offset (Смещение по оси Х) в свитке Sweep Parameters (Параметры протяжения) настроек модификатора (рис. 1.26).

Рис. 1.26. Коррекция положения формы рамы




