
Полная версия:
А. и А. Рюмины Малоэтажное домостроение
- + Увеличить шрифт
- - Уменьшить шрифт

А. и А. Рюмины
Малоэтажное домостроение
Введение
Настоящее пособие предназначено для практических занятий и самостоятельной работы при курсовом проектировании по теме «Малоэтажный жилой дом», а также рекомендуется как практическое дополнение к лекционному курсу.
В пособии реализован принцип рассмотрения конструкций исходя из их принадлежности к объемно-планировочной и конструктивной схеме здания. Приведены наиболее характерные их решения. Несущие конструкции рассматриваются как элементы, составляющие единую схему здания с точки зрения их несущей способности, а также с учетом архитектурной выразительности.
Полный библиографический список, приведенный в конце пособия, будет полезен студентам, самостоятельно изучающим вопросы проектирования малоэтажных домов.
1. Объемно-планировочные решения малоэтажного жилого дома
Правильный выбор типа здания и его конструкций требует учета ряда факторов: архитектурных, эксплуатационных, санитарно-гигиенических, противопожарных, строительных, экономических.
1.1. Природно-климатические условия
Важнейшим фактором для принятия решения общей ориентации, а также определения типологических признаков и эксплуатационных требований к жилищу является климатическая характеристика района строительства. Критериями районирования служат среднемесячная температура воздуха в январе и июле, средняя скорость ветра за три зимних месяца, среднемесячная относительная влажность.
Территория России разделена на четыре климатических района, каждый из которых, в свою очередь, делится на подрайоны со своими природно-климатическими особенностями (рис. 1.1.).
Наиболее суровые климатические условия в I климатическом районе, включающем север страны и занимающем большую часть ее территории. Такие климатические условия диктуют увеличение площади жилых комнат, кладовых, шкафов, повышенной изоляции помещений от воздействия внешней среды за счет компактности объемно-планировочного решения жилого дома, повышенной теплоизоляции ограждений и чердачных перекрытий, уменьшения числа входов в дом, устройства двойных тамбуров.
Климатические районы, находящиеся в средней полосе страны (II и III), характеризуются умеренным и теплым климатом. В этих районах используют балконы, лоджии, террасы.
На юге страны в IV климатическом районе с жарким летом, с интенсивной солнечной радиацией и относительно короткой зимой требуется создание максимальной связи внутренних помещений дома с внешней средой, возможности трансформации помещений для летнего и зимнего периодов года. В объемно-планировочном решении дома это выражается в увеличении площади летних помещений.
1.2. Санитарно-гигиенические требования к жилищу
Санитарно-гигиенические качества жилища должны удовлетворять нормативным требованиям к естественной освещенности, инсоляции, температуре, влажности и подвижности воздуха, а также к изоляции от воздействия внешних и внутренних источников шума.
1.2.1. Естественное освещение
Естественное освещение должны иметь жилые комнаты, кухни, неканализированные уборные, входные тамбуры (кроме ведущих непосредственно в квартиры), лестничные клетки. В I и II климатических районах не допускается ориентация окон жилых комнат на север, а в III и IV климатических районах – на запад.
Естественную освещенность помещений для жилых домов нормируют по отношению площади проема к площади пола освещаемого помещения. Для повышения светового комфорта помещений существенно увеличивают площадь окон, что может привести к тепловому дискомфорту в зимнее и летнее время и экономическим потерям.
Тепловой дискомфорт зимой связан с «отрицательной радиацией» – охлаждением организма в зоне светопрозрачных ограждений, температура внутренних поверхностей которых ниже температуры поверхности стен, а летом – с перегревом помещений, особенно в IV климатическом районе. Единовременные затраты возрастают в связи с тем, что сметная стоимость светопрозрачной части наружных стен на 30…40% выше, чем глухой. Эксплуатационные затраты на отопление увеличиваются из-за того, что теплопотери через стены меньше, чем через окна, так как сопротивление теплопередаче окон в два раза меньше, чем через стены.

Рис. 1.1. Границы климатических районов (Заштрихована северная строительно-климатическая зона)
Из этих соображений расчетная площадь окон в жилых комнатах должна быть:
– в I, II и III климатических районах не менее 1:8 от площади пола;
– в IV климатическом районе – не менее 1:100.
Расстояние между окном и стеной (размер простенка) должно быть не менее 1,5 м.
Общие коридоры в жилых домах должны иметь естественное освещение и проветривание. Нормы освещенности в коридорах – не менее 1:14 от площади пола.
При проектировании следует стремиться к тому, чтобы суммарное по зданию отношение площади проемов всех жилых комнат и кухонь к площади пола этих помещений не превышало 1:5,5. При этом в отдельных помещениях по архитектурно-композиционным требованиям допускается отношение 1:4,5.
1.2.2. Инсоляция
Инсоляция жилых помещений является одним из ведущих средств обеспечения гигиенических качеств, так как воздействие солнечного света губительно для большинства болезнетворных микробов и одновременно оказывает благотворное психофизиологическое воздействие на человека. Длительность инсоляции жилых помещений регламентирована в часах и зависит от климатических условий района строительство (табл. 1.1.). В застройке применяют дома, расположенные вдоль меридиана.

1.2.3. Микроклимат
Расчетную температуру внутреннего воздуха принимают равной18…20о С, в кухнях 15…16о С. Относительную влажность воздуха – 50…60%. Нормируемый перепад между температурой внутреннего воздуха в помещении и внутренней температурой наружных стен должен быть не более 6о С, покрытий, чердачных перекрытий – 4о С, перекрытий над подвалами и техническими подпольями, полов по грунту – 2о С.
Высоту жилых этажей от пола до пола принимают не более 2,8 м, выпота помещений от пола до потолка – не менее 2,5 м; в климатических подрайонах IА, IБ, IГ, IД, IIА, IVА от пола до пола – не более 3 м, от пола до потолка – не менее 2,7 м. Высота внутриквартирных коридоров должна быть не менее 2,1 м.
В I, II, III климатических районах при всех наружных входах в жилые здания предусматривают тамбуры глубиной не менее 1,2 м. При непосредственном входе в квартиру в одноквартирных и блокированных домах двойной тамбур проектируют при температуре наиболее холодной пятидневки минус 35о С и ниже.
1.3. Пути эвакуации
Отметка пола помещений при входе в здание должна быть выше отметки тротуара перед входом не менее, чем на 0,15 м.
Число подъемов в одном лестничном марше или на перепаде уровней должно быть не менее 3 и не более 18.
1.4. Типы одноквартирных домов
Одноквартирные жилые дома могут быть одно- и двухэтажными (в том числе мансардными). В зависимости от этажности их сводят к нескольким типам (табл. 1.2.). Дома могут иметь также подвальные, цокольные и мансардные этажи.
По технологии строительства одноэтажный дом является самым простым. При большом количестве помещений в одноэтажном доме появляются протяженные внутриквартирные коридоры, растет площадь застройки. Мансардные и двухэтажные дома сложнее, но они более компактны, позволяют получить изолированную зону спальных комнат на втором этаже. На сложном (крутопадающем) рельефе жилые дома строят с учетом его особенностей – вводят цокольные этажи, подвал или подполье. При этом учитывают, что при низком уровне грунтовых вод рекомендуется устройство подвала, при высоком – подполья.
Выбирая тип жилого дома по этажности, учитывают количество комнат. Двух- и трехкомнатные дома обычно строят одноэтажные. Дома с четырьмя жилыми комнатами могут быть как одно, так и двухэтажными. Пять и шесть жилых комнат располагают в двух уровнях.
Выбор размера дома по числу жилых комнат зависит от количественного и половозрастного состава семьи. По капитальным затратам разница между двух- и трехкомнатными домами составляет 10…15%. В то же время количество проживающих в трехкомнатном доме может быть в 2 раза больше, чем в двухкомнатном.
Для малых, но перспективных (молодые супруги) и средних семей (3…4 человека) рекомендуются дома с тремя жилыми комнатами.
Для больших семей:
5…6 человек – 4 жилые комнаты;
6…8 человек – 5 жилых комнат;
7…10 человек – 6 жилых комнат.
1.5. Организация квартиры
Усадебный малоэтажный жилой дом состоит из двух частей: жилой и подсобной. Жилая часть дома включает общую комнату, столовую, спальни; подсобная – кухню, санитарный узел, переднюю, хозяйственные кладовые, встроенные шкафы.
Пропорции комнат в плане, т.е. соотношение ширины (b) и глубины (h), влияют на решение функциональных и эстетических задач. Целесообразное отношение b:h составляет 1:1; 1:1,25; 1:1,5, но допускается и 1:1,75 и 1:2. В комнатах шириной больше глубины при отношении b:h, равном 1,25:1; 1,5:1; 1,75:1 и 2:1, лучше естественное освещение, инсоляция, условия размещения мебели, но больше теплопотери через наружную стену.
Шириной жилых комнат принимают не менее 2,5 м, глубину – не менее 3 м и не более 6 м.


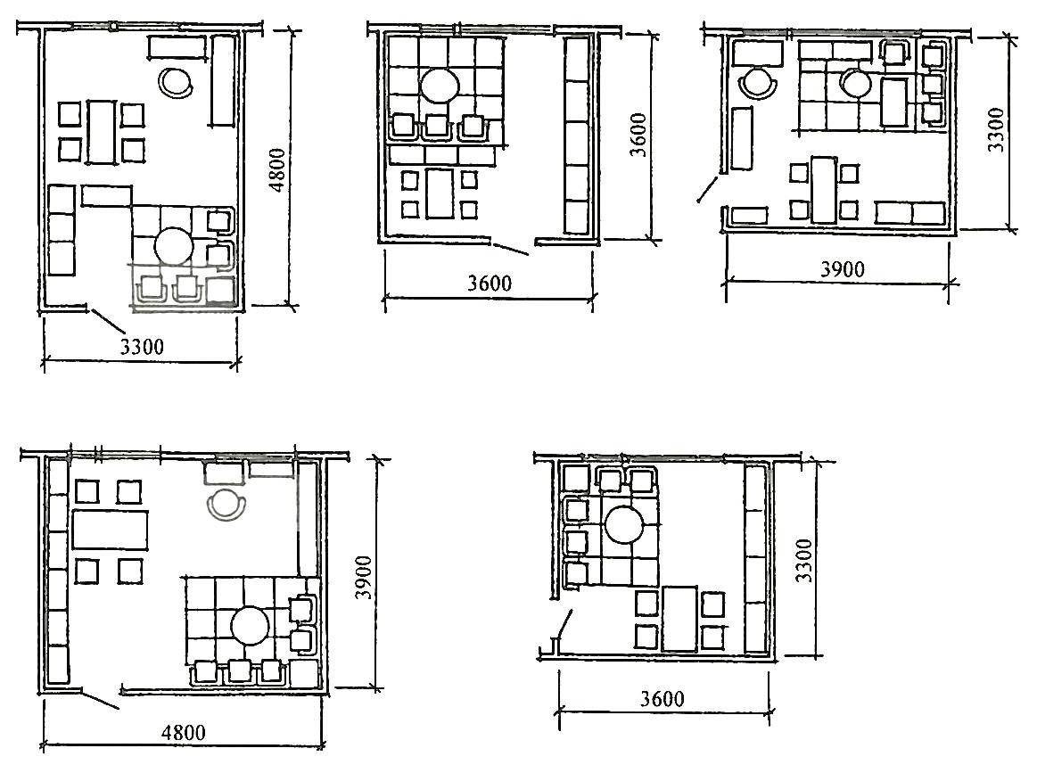
Общая комната (рис. 1.2., 1.3.) площадью, равной 6-24 м2 (шириной не менее 3 м), может иметь две функциональные зоны: отдыха и обеденную. В зоне отдыха размещают мягкую мебель, телевизоры, шкаф для книг; в обеденной – стол, стулья, шкаф для посуды. Последнюю располагают ближе к двери в кухню. Функциональные зоны разделяют расстановкой мебели, размещением светильника, ковром на полу. Общую комнату делают как изолированной, так и проходной. Она должна просматриваться из передней. Для этого дверь из передней обычно делают двухстворчатой остекленной. Общую комнату непосредственно связывают с передней. Допускается проектировать проход в спальню через общую комнату.

Рис. 1.2. Минимально необходимые размеры общей комнаты: а) с телевизором; б) с обеденным столом

Рис. 1.3. Варианты организации общей комнаты
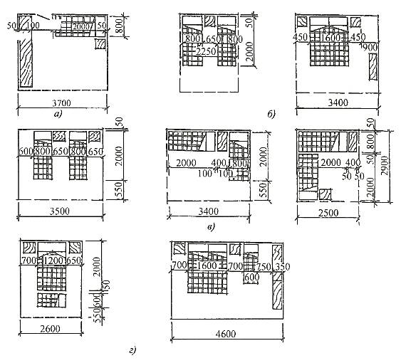
Спальные комнаты (рис. 1.4., 1.5.) проектируют:
– на одного человека площадью – 8…10 м2;
– на двух человек (супружеской пары) – 12…14 м2;
– на двух человек одного пола – 10…12 м2;
– для родителей и ребенка до трех лет – 16…18 м2.
В спальных помещениях оборудуют зону сна, а также место для хранения личных вещей. Спальни должны быть непроходными.

Рис. 1.4. Минимально необходимые размеры спальной комнаты: а) для одного человека; б) для супружеской пары; в) для однополых детей; г) для супругов и ребенка до трех лет
Желание иметь просторную гардеробную осуществимо даже в небольшой спальне. На рис. 1.6. показана спальня, обставленная по общепринятым канонам: с одной стороны – кровать, напротив – платяной шкаф и между ними – много свободного пространства. Если шкаф поставить спинкой к кровати и закрыть декоративной панелью, он отделит гардеробную от спальни и для кровати останется достаточно места. В этом случае платяной шкаф служит разделителем пространства. Благодаря такой конструкции спальня освобождается от ненужной мебели и приобретает уют и комфорт.

Рис. 1.5. Варианты планировки спальных комнат: а) для одного человека; б) для супружеской пары; в) для двоих однополых детей; г) для супругов и ребенка до трех лет

Рис. 1.6. Пример размещения мебели в спальне: а) традиционное; б) нетрадиционное
Кухню-столовую проектируют с учетом установки в них необходимого санитарно-технического оборудования и мебели. Площадь должна быть не менее 12…14 м2 (рис. 1.7., 1.8., 1.9.). Ширина кухонь при однорядном расположении оборудования должна быть не менее 1,9 м при угловом и двухрядном – не менее 2,3 м.

Рис. 1.7. Примерный набор кухонного оборудования: а) для семьи из одного – двух человек; б) трех – четырех человек; в) пяти человек; 1 – холодильник; 2 – мойка; 3 – рабочий стол; 4 – плита

Рис 1.8. Минимально необходимые пространства кухни: а) для открывания духовки; б) для работы за выдвижным столом; в) для размещения за обеденным столом
Конечно, на кухне совершенно естественно выглядит обеденный стол. Но если кухня небольшая и узкая, вполне возможно разместить не только обеденный стол, но и диванчик (рис. 1.9. г). Чтобы не пропадало угловое пространство, в ряду кухонных шкафов в качестве дополнительного элемента вполне угловой встроенный шкаф с полками на вращающейся основе.

Рис 1.9. Варианты организации интерьера кухни: а) с однорядным расположением оборудования; б) угловым; в) двухрядным; г) с откидным столом
Санитарный узел. Если дом подключают в сетям наружных коммуникаций, санузел делают раздельным, то есть туалет отделяют от ванной комнаты.
В домах с двумя уровнями устраивают два санузла. На первом этаже – туалет, на втором – ванная, совмещенная с туалетом. Минимальная площадь туалета 1,5…2 м2, ванной – 4 м2. Внутренние размеры ванной должны быть не менее 1,4х1,72 м, а туалета – не менее 0,8х1,2 м. Двери уборной, ванной и санузла должны открываться наружу. Не допускается располагать уборную и ванную непосредственно над жилыми комнатами и кухней. Размещение уборной и ванной (или душевой) над кухней допускается в квартирах, расположенных в двух уровнях. Вход в помещение, оборудованное унитазом, непосредственно из кухни и жилых помещений (кроме жилых помещений, предназначенных для семей с инвалидами) не допускается. Не допускается крепление приборов и трубопроводов непосредственно к межквартирным стенам и перегородкам, ограждающим жилые комнаты. Основные типы и размеры санитарных узлов приведены на рисунках 1.10., 1.11.

Рис. 1.10. Минимально необходимые расстояния в санузле: а) для умывания; б) для использования туалета; в) для вытирания полотенцем
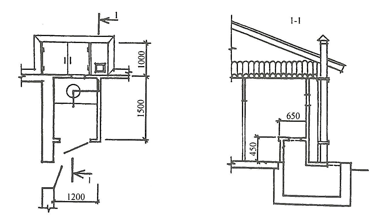
Если дом автономен, устраивают холодную уборную-клозет с выгребной ямой. Ее размещают у наружной стены и делают окно для приточно-вытяжной вентиляции (рис. 1.12.) Для отвода воздуха из люфт-клозета применяют вентиляционную трубу диаметром 10 см, которая выступает над крышей на один метр.
В I, II, III климатических районах, за исключением IIIБ подрайона, допускается устраивать теплые неканализованные уборные (люфт-клозеты), предусматриваемые в квартирных домах в пределах отапливаемой части здания. Размещение уборной в теплой части дома требует устройства перед ней небольшого шлюза. В IV климатическом районе и IIIБ климатическом подрайоне неканализованных уборных в отапливаемой части жилого дома не допускается. При этом предусматривают помещения для устройства в дальнейшем канализованных уборных отапливаемой части здания и уборные вне пределов здания.

Рис. 1.11. Основные типы санитарных узлов: а), б), в) туалеты без умывальника и с умывальником; г) ванная; д), е) совмещенные санузлы; ж) раздельный санузел; 1 – место для стиральной машины

Рис.1.12. Пример расположения холодной уборной-клозета
Передние, как правило, имеют ширину не менее 1,4 м, площадь не менее трех квадратных метров. В зависимости от пропорций в плане передняя бывает трех типов:
– вытянутая по направлению входа, т.е. коридорного типа; дверь в общую комнату находится на оси входа или на длинной стороне передней (рис. 1.13. а);
– того же коридорного типа, входная дверь в квартиру находится на длинной стороне передней, напротив входа – кухня или спальня; общая комната – налево или направо от входа (рис.1.13. б);
– передняя – холл (при распахнутых дверях общей комнаты холл увеличивает ее пространство). В домах с двумя уровнями холл устраивают на втором этаже (рис. 1.13. в).
Типичная передняя характеризуется наличием большого количества дверей и недостатком места для мебели и аксессуаров.
На рис. 1.13. г приведен пример оптимального использования мебели, не загромождающей помещение передней.
Вся мебель имеет строго рассчитанные габариты и тем самым оставляет много свободного пространства в прихожей. Например, полка над шкафом глубиной 40 см оборудована выдвижными ящиками.

Рис. 1.13. Передняя: а) вытянутая по направлению входа; б) с входной дверью по длинной стороне передней; в) передняя-холл; г) пример размещения мебели
Такую конструкцию имеет и гардероб глубиной 24 см слева от выхода. Напротив него остается место для обувного шкафа.
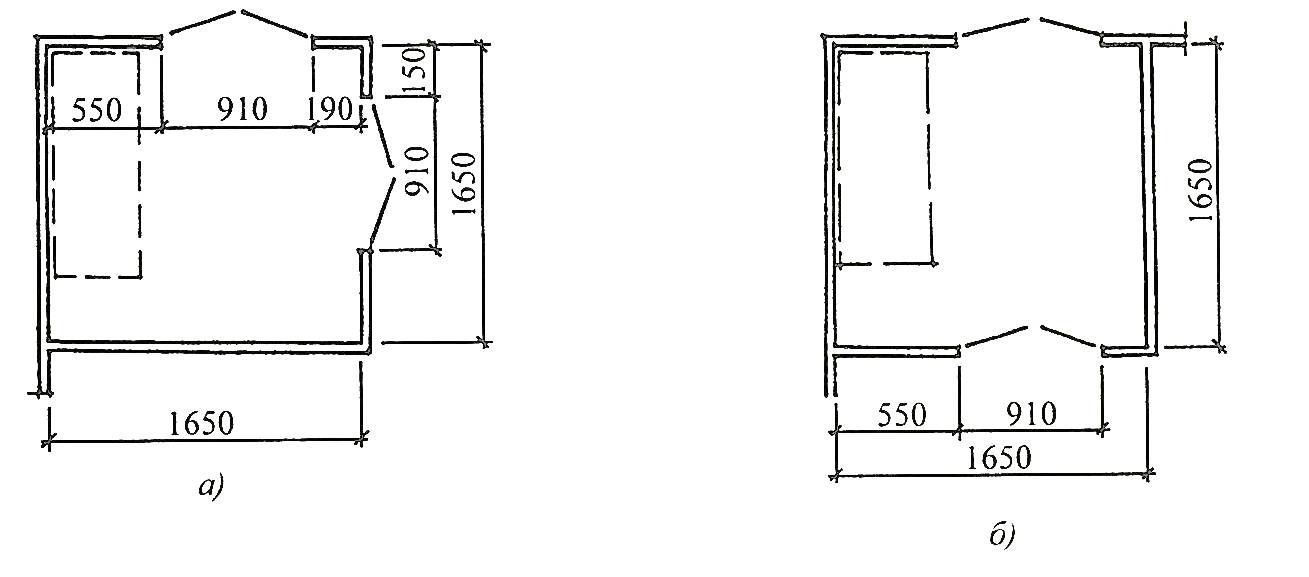
Тамбур (рис. 1.14.) предназначен для защиты дома от проникновения холодного воздуха с улицы.
Оптимальные размеры тамбура 1,65х1,65 м или 2,05х2,05 м с площадью соответственно 2,72 и 4,2 м2.

Рис.1.14. Тамбур: а) проход с поворотом; б) с прямым проходом
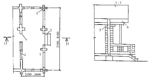
Внутриквартирные лестницы. Коммуникационным элементом жилых домов являются внутриквартирные лестницы. По количеству маршей лестницы могут быть одно-, двух-, трехмаршевыми (рис. 1.15.).

Ширина лестничного марша должна быть не менее 90 см, уклон i=1:1,25 (т.е. не круче 40о). В одномаршевых лестницах между двумя стенами ширина должна быть не менее 110 см. Ширина забежных ступеней по середине должна быть не менее ширины ступеней марша, а в узком конце не менее 8 см. Высота перил над ступенями -84 см, над лестничной площадкой – 1 м.

Рис. 1.15. Одно-, двух- и трехмаршевые внутриквартальные лестницы
На рис. 1.16. приведены схемы расположения лестниц в зависимости от конструкции перекрытий. Лестницу размещают либо в передней, либо в общей комнате (рис. 1.17.).
Кладовые устраивают как теплые, так и холодные. Кладовые размещают в хозяйственной зоне квартиры. В первом, цокольном или подвальном этажах следует предусматривать кладовую для хранения уборочного инвентаря, оборудованную раковиной. Площадь теплой кладовой 1…1,8 м2, холодной – 4 м2.
Встроенный шкаф размещают в передней, в коридоре. Высота антресоли 0,4 м.

Рис. 1.16. Схемы расположения внутриквартирных лестниц в зависимости от конструкции перекрытия

Рис. 1.17. Варианты размещения внутриквартирных лестниц: а) в общей комнате; б) в передней – холле

Рис. 1.18. Пример решения крыльца: 1 – площадка; 2 – ступени; 3 – перила; 4 – козырек
Коридоры. Ширина коридора, ведущего в комнаты, принимают не менее 1,1 м, остальных – 0,85 м. Высоту коридоров, не ведущих в жилые комнаты, а также проходов, шлюзов и кладовых принимают не менее 2,1 м.
Крыльцо – это открытая площадка с несколькими ступенями (рис. 1.18.), устраиваемая перед входом в жилой дом. Ширину крыльца принимают не менее полуторной ширины входной двери. Ступени делают шириной 270…300 мм, высотой 150 мм и длиной 1200…1500 мм.
Для кирпичных и каменных домов крыльцо выполняют из монолитного или сборного железобетона, для деревянных – из дерева.
С целью защиты деревянных элементов крыльца от загнивания предусматривают их гидроизоляцию. Их антисептируют, защищают водонепроницаемым полом. Над площадкой крыльца делают козырек или навес. Один конец козырька заделывают в наружную стену дома, а другой оставляют консольным или опирают на деревянные стойки.
Терраса – это открытое летнее помещение (рис. 1.19.). террасу располагают перед главным входом в дом. Ее ограждают легкими перилами и покрывают легкой кровлей.

Рис. 1.19. Пример решения террасы: 1 – площадка входа; 2 – ступени; 3 – ограждение; 4 – окно; 5 – стена дома; 6 – крыша
Веранда – это холодное помещение (рис. 1.20.), которое располагают вдоль главного фасада или вдоль торца дома. Делают его закрытым длиной 3,5…6 м, шириной не менее 2 м. Ограждение веранды выполняют из одинарных оконных переплетов.
Легкий деревянный каркас веранды опирают на железобетонные или кирпичные столбы, одинарный дощатый пол – на систему деревянных балок, стропила и кровлю – на деревянные стойки, соединенные поверху обвязкой.

Рис. 1.20. Пример решения веранды: 1 – площадка входа; 2 – ступени; 3 – ограждения; 4 – стена дома; 5 – окно
Над верандой устраивают крышу односкатную или двускатную. Входную лестницу располагают под общей крышей или под выносным навесом.
Балконы выступают за пределы наружной стены здания. Их ограждают перилами высотой 0,9…1,2 м.
Лоджии размещают в западающих частях здания. Площадь балконов и лоджий принимают не более 10 м2 и не более 15% от площади квартиры.
Нежилые этажи. В подвальных и цокольных этажах жилых домов допускается устройство встроенных и встроенно-пристроенных стоянок для машин и мотоциклов, гаражей, принадлежащих гражданам, с соблюдением требованием СНиП II-93-74. В зданиях IIIа, IIIб, IVа, IV и V степеней огнестойкости над воротами гаража предусматривают козырек, если над ним расположены окна других помещений.
Уровень кровли встроенно-пристроенной части здания не должен превышать отметки пола вышерасположенных жилых помещений основной части здания. Утеплитель в покрытии должен быть негорючим. Покрытие должно иметь защитный слой, предохраняющий от солнечного перегрева. Высоту подвальных и цокольных помещений, а также технических подполий от уровня пола до низа плиты перекрытия принимают не менее 1,8; при размещении в них стоянок для автомашин и мотоциклов, принадлежащих гражданам – не менее 2 м; индивидуальных тепловых пунктов – не менее 2,2 м.
В технических подпольях, подвальных и цокольных этажах предусматривают сквозной проход вдоль здания высотой не менее 1,8 м (в чистоте). На отдельных участках протяженностью не более 1 м допускается уменьшать высоту прохода до 1,6 м (в чистоте). Жилые помещения в подвальных и цокольных этажах жилых зданий не размещаются.
В наружных стенах подвалов и технических подполий, не имеющих вытяжной вентиляции, предусматривают продухи общей площадью не менее 1/400 площади пола технического подполья, подвала, равномерно расположенные по периметру наружных стен. Площадь одного продуха принимают не менее 0,05 м2.
На чердаках, включая технические, предусматривают сквозной проход вдоль здания высотой не менее 1,6 м, шириной не менее 1,2 м. На отдельных участках протяженностью не более 2 м допускается уменьшать высоту прохода до 1,2 м, а ширину – до 0,9 м.
Высота помещений хозяйственных построек для содержания скота и птицы должна быть не менее 2,4 м. Их пристраивают только к одно- и двухквартирных домам при изоляции их от жилых комнат не менее, чем тремя подсобными помещениями.







